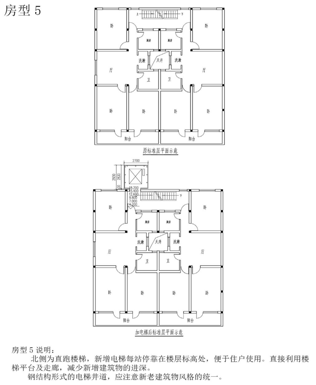
八种房型八种旧楼加装电梯方案,总有一种适合你!(点击下面图片查看清晰大图)















PS:本文节选自《上海市既有多层住宅加装电梯建设指南》
下面我们统计了全国各地有补贴的城市及补贴明细。
明确有补贴的省份城市:
河北、江西上饶、云南、山东聊城
即将有补贴的省份城市:
哈尔滨:(即将每台补贴15万元)
已有补贴的城市:
北京海淀: 最高补贴70万(其中设备购置方面是在市财政补贴40%、最高24万元/台的基础上再次进行财政补贴,使补贴比例扩大到50%、最高30万元/台;而在施工过程中需要对水、电、气、热、暖等实施改造的,由市财政按照实际发生费用给予财政补贴,最高不超过40万元/台。)
山东济南: 七层住宅加装电梯每部补贴22万元;六层住宅加装电梯每部补贴20万元;五层住宅加装电梯每部补贴18万元;四层住宅加装电梯每部补贴16万元。
山东青岛: 市级一台补贴10万元,有电梯井道的补贴5万。另外各区(市)财政安排的奖补资金,原则上不低于市级财政奖补标准。
山东潍坊: 奎文区、潍城区、坊子区、寒亭区(含经济区)、高新区、保税区。既有多层住宅加装电梯每台补助15万元。
山东泰安: 最高补贴20万
重庆: 最高补贴25万(每部增设电梯的勘查、设计、施工等总费用的60%予以补贴)
安徽合肥: 补贴额为25万元(包含了10年维保费及电费补贴3000元)
安徽滁州: 七层每部补贴18万元;六层每部补贴17万元;五层每部补贴16万元;四层每部补贴15万元。
安徽铜陵: 七层20万元/台,六层18万元/台,五层16万元/台;涉及管线改造的,另增加5万元补助资金。
安徽芜湖: 最高补贴20万(涉及管线改造的,另增加5万元补助资金)。
北京: 最高补贴24万
上海: 补贴24万
浙江杭州: 补贴20万
浙江宁波: 最高补贴20万
浙江平湖: 每台补贴5万
浙江湖州: 每台补贴15万
黑龙江黑河: 每台补贴7万
浙江嘉兴: 电梯最高补贴20万(政府按照电梯加装费用50%的比例给予最高不超过20万元/台的补助,市、区两级财政各承担50%;涉及管线迁移所需费用,由市级财政给予最高不超过5万元/台的补助)
浙江台州椒江区: 电梯每台补贴最高20万(对涉及给排水、供电、管道煤气、通信设施等管线迁移的,费用由区财政按照每台不超过10万元的标准进行补贴)
四川成都: 最高补贴20万
四川泸州: 每部电梯补贴20万/元(原有电梯井的每台补贴10万元)
四川南充: 补贴15万
四川德阳:6层补贴15万(以电梯停靠6个楼层为基准,每部电梯补贴15万元,其中,已预留电梯井的建筑,每部电梯补贴10万元),每增加一层停靠楼层增加补贴0.5万元,6层以下(含6层),财政不予补贴。
四川绵阳: 最高补贴15万
四川自贡: 最高补贴20万
江苏南京: 最高补贴20万
江苏扬州: 五层、六层和七层以上分别补贴16万元、18万元和20万元
江苏无锡: 住宅楼为七层及七层以上的补贴10万元/台、六层的9万元/台、五层的8万元/台、四层的7万元/台。
江苏常州: 对符合加装电梯申请条件并出资的最低生活保障家庭,每户按其加装电梯出资金额的百分之八十给予财政资金补助。
广东广州: 补贴10万
广东广州越秀区: 最高补贴15万(含困难低保家庭补助5万)
广东惠州: 补贴5万
广东佛山南海区: 补贴3万
广东中山: 每台补贴10万(2018年12月23日实施)
广东江门蓬江区: 最高补贴10万
广东汕头: 每台补贴4万
福建福州: 最高补贴10万
福建厦门: 最高补贴22万
福建莆田: 每台补贴8万
福建漳州: 最高补贴10万(六层、每减少一层减少0.5万)
陕西西安: 补贴15万
陕西宝鸡: 最高补贴15万(停靠7个楼层政府补贴15万/单元。每增减一个停靠楼层相应增减补贴3000元/单元。)
陕西咸阳:15万(具体待查)
陕西铜川: 每台补贴10万
湖北武汉: 每台补贴10万
湖北十堰: 最高补贴10万
甘肃兰州: 电梯补贴10万,配套补贴不低于10万
江西九江: 以奖代补每台补贴3万元
河南郑州: 最高补贴15万
广西: 最高补贴18万(补贴标准以七层住宅补贴上限15万元/台为基准,住宅楼层数每增加一层,补贴上限增加10%,住宅楼层数每减少一层,补贴上限减少10%,即4层住宅补贴上限10.5万元/台,5层住宅补贴上限12万元/台,6层住宅补贴上限13.5万元/台,7层住宅补贴上限15万元/台,8层住宅补贴上限16.5万元/台,9层住宅补贴上限18万元/台。)
广西南宁: 最高20万(如果是7层住宅加装电梯,最高不仅可享受自治区级财政15万元/部的补贴,还能享受南宁市级财政5万元/部的补贴。)
广西柳州: 每台最高补贴20万(《柳州市关于推进既有住宅加装电梯工作的实施意见》)(下简称“实施意见”)已经通过市委市政府审议,近期发布实施)
无锡: 住宅楼为七层及七层以上的补贴10万元/台、六层的9万元/台、五层的8万元/台、四层的7万元/台。
湖南株洲: 每台补贴10万。
宁夏银川: 每台补贴15万(10月1日前完成土建)(对在2019年10月2日-2021年12月31日期间,每部按照规定完成加装电梯并验收合格的,由银川市财政按每部5万元的标准给予补贴之外,三区政府根据情况给予补贴。)
青海省: 每台电梯奖励15万。
新疆乌鲁木齐: 有补贴,金额未知。
苏州: 最高20万/台资金补贴(涉及管线迁移所需费用由各管线单位和政府共同承担。姑苏区的补贴资金由市、区财政分别承担,具体办法另行制定。吴中区、相城区、工业园区、高新区、吴江区的既有住宅增设电梯补贴资金由各区财政自行承担。常熟市、昆山市、太仓市、张家港市可结合实际参照执行)
来源:网络



